Ook voor zakelijke leningen (bedrijfshypotheek en/of rekening-courant), kunt u bij ons kantoor terecht. Klik hier voor meer informatie
Woningzoeker
- Kopen
- Huren
TE KOOP: Ceresstraat 154, Vaals
| Vraagprijs | € 195.000,- k.k. | ||
| Bouwjaar | 1976 | ||
| Woonoppervlakte | 107 m² | ||
| Bruto inhoud | 350 m³ | ||
| Aantal slaapkamers | 2 | ||
| Energielabel | D | ||
| Brochure | |||
| Social Media | |||
| |||
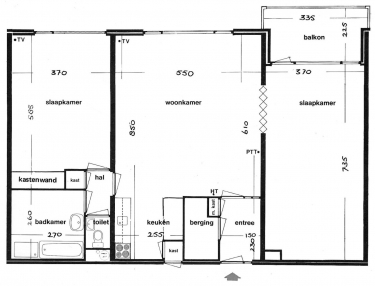
Er zijn (nog) geen plattegronden aan deze woning gekoppeld.
Op de begane grond van het appartementencomplex "Het Hooghe Oord" (gebouw A) ligt deze royaal ingedeelde 3-kamerwoning. Dit appartement beschikt o.a. over: een balkon/terras, grenzend aan de Ceresstraat, twee zeer ruime slaapkamers, studeerkamer/eetkamer en riante woonkamer met open keuken. Door de grote raampartijen, is er zeer veel daglichttoetreding.
GLOBALE INDELING:
• hal (ca. 3,5 m2) met ruime garderobe, bergruimte (ca. 3 m2) en meterkast
• woonkamer met halfopen keuken (totaal ca. 39,5 m2)
• 2 zeer ruime slaapkamers (resp. ca. 19,5 m2 en 20 m2). De grootste kamer is nu middels demontabele scheidingswand verdeeld in een logeerkamer/kleedkamer (zonder directe daglichttoetreding) en studeer-/eetkamer.
• studeerkamer/werkkamer met terras (ca. 7,5 m2)
• portaal met muurkast (hier bevindt zich de witgoedaansluiting) en moderne toiletruimte
• moderne badkamer (ca. 7 m2) met ligbad, inloopdouche, toilet, badmeubel
• in het souterrain bevindt zich tevens een separate privéberging (ca. 4 m2). Op dit niveau bevindt zich tevens een gezamenlijke fietsenberging.
ALGEMEEN:
• het appartement is voorzien van hardhouten kozijnen met deels dubbel glas
• voorschot VvE bijdrage 2025 bedraagt € 685,77 p.m. (o.b.v. 1 persoon). Hierin zitten o.a.: totale waterverbruik (warm en koud), gasverbruik c.v., elektriciteitsverbruik algemene ruimten, abonnement kabeltelevisie en -radio, schoon houden algemene ruimten en glazenbewassing, onderhoud lift + tuin, ophalen huisvuil/oud papier, opstal- en glasverzekering, personeelskosten (o.a. huismeester), afschrijvingen en reservering groot onderhoud. De "netto" VvE bijdrage zijn veel lager dan men in eerste instantie verwacht, aangezien er in bovengenoemd bedrag zeer veel leveringen en diensten zijn opgenomen.
Voor een 2e bewoner wordt de genoemde voorschotbijdrage met ca. € 20,00 per maand verhoogd.
• een extra berging (klein formaat, ca. 6,5m2) voor € 26,- p.m. of extra berging (groot formaat, ca. 25 m2) voor € 49,- p.m resp. logeerkamer is bij te huren (1-persoons of 2-persoons).
• het voor dit appartement aanwezige aandeel in de onderhoudsreserve wordt eveneens aan koper overgedragen (inbegrepen in de koopprijs)
• "Het Hooghe Oord" beschikt over 9 logeerkamers die u tegen een minimale vergoeding kunt huren voor uw gasten.
• voor meer informatie over het complex: www.hoogheoord.nl
• aanvaarding: per direct
| Woning | Appartement / flat |
| Garage | Nee |
| Tuin | Nee |
| Bouwlagen | 1 |
| Badkamers | 1 |
| Garages | 1 |
| Kelder | Nee |
| Lift | Ja |
Reageer op deze woning
Wilt u graag meer informatie over deze woning, of wilt u graag een afspraak met ons maken omtrent deze woning?
Vul onderstaand formulier in, dan nemen wij z.s.m. contact met u op.
Dit object aanraden aan een bekende
Hypotheek berekenen
Voncken makelaardij o.g. beschikt tevens over de nodige hypotheek-expertise. Het kopen van Uw huis is namelijk stap één, het financieren is stap twee. Dit stelt hoge eisen aan de kwaliteit van het financiële advies. Om die te waarborgen hebben de gezamenlijke hypotheekaanbieders een landelijke erkenningsregeling ingesteld, onder verantwoordelijkheid van de Stichting Erkenningsregeling Hypotheekadviseurs (kortweg: SEH). De regeling is bedoeld voor alle individuele hypotheekadviseurs in Nederland. Zo'n persoonsgebonden certificering schept duidelijkheid voor U als consument. Wanneer U een Erkend Hypotheekadviseur raadpleegt, mag U erop rekenen dat deze zijn of haar vak verstaat. Met deze erkenning onderscheidt ons kantoor zich – in de persoon van Edwin Crombach – als een vakbekwame gesprekspartner.
Klik hier om uw maximale hypotheek te berekenen.
Neem contact met ons op om een vrijblijvende hypotheekafspraak te maken.
