Ook voor zakelijke leningen (bedrijfshypotheek en/of rekening-courant), kunt u bij ons kantoor terecht. Klik hier voor meer informatie
Woningzoeker
- Kopen
- Huren
TE KOOP: Pastorijweg 65, Vijlen
| Vraagprijs | € 290.000,- k.k. | ||
| Bouwjaar | 1961 | ||
| Perceeloppervlakte | 280 m² | ||
| Woonoppervlakte | 92 m² | ||
| Bruto inhoud | 348 m³ | ||
| Aantal slaapkamers | 3 | ||
| Energielabel | E | ||
| Social Media | |||
| |||
Deze mooie 2/1-kapwoning, gelegen in het pittoreske Vijlen, is een ideale plek voor gezinnen die op zoek zijn naar rust en ruimte. Het object is gebouwd in 1961 en keurig verzorgd. De vorige eigenaar heeft aan de achterzijde een uitbouw gerealiseerd. Met een perceeloppervlakte van 280 m2 en een woonoppervlakte van 92 m2 biedt deze woning voldoende ruimte voor het hele gezin.
De woning beschikt o.a. over 3 slaapkamers, een diepe tuin op het zuidoosten, een compacte garage en 2 parkeerplaatsen (aan voorzijde) op eigen terrein. De EPC-waarde van de woning is 302.20 kWh/m2 en het energielabel is E. Koper kan naar eigen wens aanvullende energiebesparende maatregelen treffen.
GLOBALE INDELING:
Souterrain:
• kelder-/provisieruimte (ca. 6 m2)
Begane grond (voorzien van plavuizenvloer):
• hal met meterkast, toiletruimte en verdiepingstrap
• doorzon woon-/eetkamer (ca. 29 m²) met open haardschouw (schoorsteen op dak is verwijderd, dus haard wordt niet gebruikt)
• gesloten keuken (ca. 9,50 m²) met complete aanrechtcombinatie incl. keramische kookplaat, afzuigkap, oven, koelkast en veel kastruimte.
• bijkeuken (ca. 6 m2) met witgoedaansluiting en HR c.v.-combiketel (eigendom). De achtertuin is van hieruit toegankelijk.
• garage (ca. 12,5 m2) voorzien van stalen kantelpoort
• buitenberging/hobbyruimte (ca. 9 m2)
• diepe achtertuin met houten tuinhuis (ca. 5,5 m2)
• de voortuin is volledig bestraat en wordt momenteel gebruikt voor het parkeren van 2 personenauto's
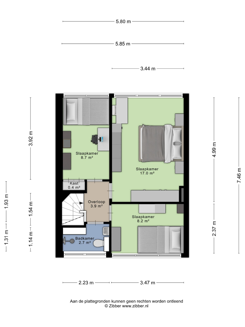
1e Verdieping:
• overloop
• 3 slaapkamers met laminaatvloer (resp. ca. 17, 9 en 8 m2)
• volledig betegelde badkamer voorzien van badmeubel met wasbak, douche en zwevend closet
ALGEMEEN:
• starters kunnen onder voorwaarden profiteren van 0% overdrachtsbelasting (i.p.v. het reguliere 2%-tarief) bij aankoop
• gelegen in een rustige woonstraat, aan de buitenrand van het dorp
• geheel voorzien van kunststoffen kozijnen met isolerende beglazing. Diverse rolluiken aanwezig.
• Heerlen (ca. 15 autominuten), Maastricht (ca. 25 autominuten) en Aken (ca. 15 autominuten) zijn goed bereikbaar
• aanvaarding: omstreeks medio 2026
| Woning | Woonhuis |
| Garage | Ja |
| Tuin | Ja |
| Bouwlagen | 2 |
| Badkamers | 1 |
| Parkeerplaatsen | 2 |
| Garages | 1 |
| Kelder | Ja |
Reageer op deze woning
Wilt u graag meer informatie over deze woning, of wilt u graag een afspraak met ons maken omtrent deze woning?
Vul onderstaand formulier in, dan nemen wij z.s.m. contact met u op.
Dit object aanraden aan een bekende
Hypotheek berekenen
Voncken makelaardij o.g. beschikt tevens over de nodige hypotheek-expertise. Het kopen van Uw huis is namelijk stap één, het financieren is stap twee. Dit stelt hoge eisen aan de kwaliteit van het financiële advies. Om die te waarborgen hebben de gezamenlijke hypotheekaanbieders een landelijke erkenningsregeling ingesteld, onder verantwoordelijkheid van de Stichting Erkenningsregeling Hypotheekadviseurs (kortweg: SEH). De regeling is bedoeld voor alle individuele hypotheekadviseurs in Nederland. Zo'n persoonsgebonden certificering schept duidelijkheid voor U als consument. Wanneer U een Erkend Hypotheekadviseur raadpleegt, mag U erop rekenen dat deze zijn of haar vak verstaat. Met deze erkenning onderscheidt ons kantoor zich – in de persoon van Edwin Crombach – als een vakbekwame gesprekspartner.
Klik hier om uw maximale hypotheek te berekenen.
Neem contact met ons op om een vrijblijvende hypotheekafspraak te maken.
