Ook voor zakelijke leningen (bedrijfshypotheek en/of rekening-courant), kunt u bij ons kantoor terecht. Klik hier voor meer informatie
Woningzoeker
- Kopen
- Huren
TE KOOP: Van Alphenstraat 4, Heerlen
| Vraagprijs | € 365.000,- k.k. | ||
| Bouwjaar | 1955 | ||
| Perceeloppervlakte | 119 m² | ||
| Woonoppervlakte | 111 m² | ||
| Bruto inhoud | 425 m³ | ||
| Aantal slaapkamers | 3 | ||
| Energielabel | C | ||
| Brochure | |||
| Social Media | |||
| |||
Aan de Van Alphenstraat 4 in Heerlen treft u deze verrassend ruime en gemoderniseerde gezinswoning met een totale woonoppervlakte van ruim 110m². De woning biedt u alles wat u zoekt: maar liefst drie volwaardige slaapkamers, een compacte zolderkamer (ideaal als "logeer-/werkkamer") een open en lichte woonkamer met moderne keuken, een balkon aan de achterzijde en een praktische kelder. Daarnaast beschikt u over een fijne stadstuin met berging, waardoor binnen en buiten naadloos in elkaar overlopen. Deze woning combineert comfort, ruimte en functionaliteit op een aantrekkelijke manier en is daarmee uitermate geschikt voor gezinnen die op zoek zijn naar een instapklare woonplek.
De woning is gelegen in een prettige en goed bereikbare buurt in Heerlen, nl. in het mooie "Molenbergpark". In de directe omgeving vindt u diverse voorzieningen zoals supermarkten, winkels en horecagelegenheden, waardoor u alles binnen handbereik heeft. Scholen en sportclubs bevinden zich op korte afstand, ideaal voor gezinnen met kinderen. Ook de bereikbaarheid is uitstekend te noemen, met goede verbindingen naar het openbaar vervoer en nabijgelegen uitvalswegen die u snel richting omliggende steden brengen.
Entree
U betreedt de woning via de straatzijde, waar u profiteert van voldoende gratis parkeergelegenheid in de directe omgeving. Eenmaal binnen komt u in de hal. Vanuit hier heeft u toegang tot de toiletruimte, de woonkamer en de trapopgang naar de eerste verdieping en kelder.
Woonkamer
De woonkamer vormt het hart van de begane grond en kenmerkt zich door de ruime en open opzet. Dankzij de grote raampartijen geniet u hier van een prettige lichtinval, wat bijdraagt aan een aangename sfeer. Er is volop ruimte voor het creëren van een comfortabele zithoek en een gezellige eethoek. Via dubbel openslaande deuren heeft u direct toegang tot het terras/de achtertuin, waardoor binnen en buiten op een natuurlijke manier met elkaar verbonden zijn.
Keuken
De open keuken sluit naadloos aan op de woonkamer en is zowel praktisch als modern ingericht. Het langwerpige aanrechtblad biedt u volop werkruimte, terwijl het kookeiland met inductiekookplaat en geïntegreerde afzuiging een echte blikvanger vormt. Daarnaast is de keuken voorzien van diverse inbouwapparatuur, waaronder een oven, vaatwasser en koelkast. Met de spoelbak (met quooker) en de ruime opbergmogelijkheden langs de wand is de keuken van alle gemakken voorzien.
Kelder
De kelder biedt u een praktische ruimte voor het opslaan van voorraden en overige spullen.
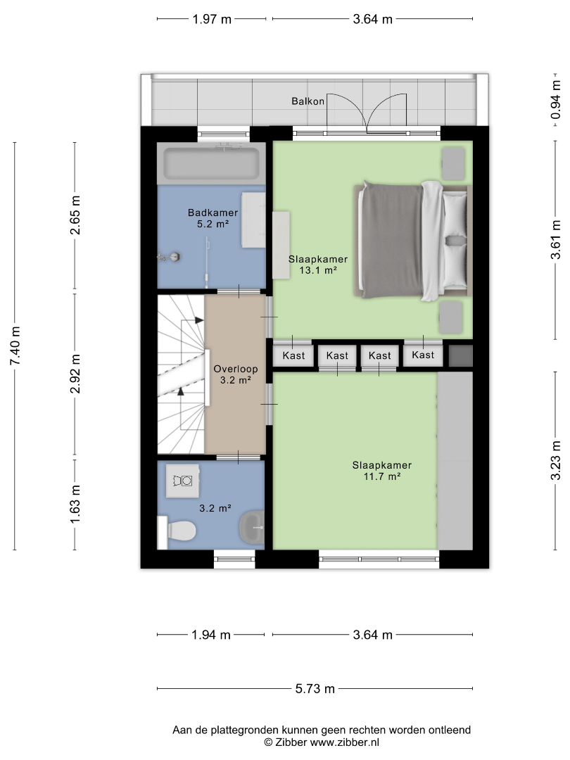
1e verdieping
Via de vaste trap in de hal bereikt u de eerste verdieping, waar zich de overloop, twee slaapkamers, de ruime badkamer en een separate toilet-/wasruimte (voormalige badkamer) bevinden.
Slaapkamers
De twee slaapkamers op deze verdieping zijn ruim en veelzijdig in te richten. Dankzij de prettige lichtinval voelen de kamers aangenaam en open aan en bieden zij voldoende ruimte voor een bed, bureau en kastruimte. Beide slaapkamers beschikken bovendien over ingebouwde kasten, wat bijdraagt aan extra comfort. De slaapkamer aan de achterzijde biedt toegang tot een balkon, waar u heerlijk kunt ontspannen en genieten van de buitenlucht.
Sanitair
De moderne en volledig betegelde badkamer is gelegen aan de overloop en straalt comfort en luxe uit. U beschikt hier over een ligbad, een douche met glazen wand, dubbele wastafel met opbergmeubel en een designradiator. De ruimte is goed onderhouden en praktisch ingericht. Daarnaast is er een separate toilet-/wasruimte aanwezig, wat zorgt voor extra gemak.
2e verdieping
Via de vaste trap bereikt u de tweede verdieping, waar nog een ruime slaapkamer én logeer-/werkkamer zijn gerealiseerd. Ondanks de schuine wanden is er voldoende stahoogte aanwezig en zijn de ruimtes multifunctioneel te gebruiken, waaronder hobby's.
Buitenruimte
De achtertuin is verzorgd aangelegd en biedt een speels hoogteverschil, wat zorgt voor een levendig geheel. De tuin is deels bestraat en deels voorzien van groen, waardoor u eenvoudig een fijn terras kunt creëren om te ontspannen of gezellig buiten te zitten. Achter in de tuin bevindt zich bovendien een praktische berging, ideaal voor het opbergen van fietsen en tuingereedschap. Via een tuinpoort is de achteruitgang bereikbaar.
Bijzonderheden:
• in 2018 door een vorige eigenaar grotendeels gerenoveerd en in 2022 verder verbeterd (waaronder zadeldak!)
• Verrassend ruime en gemoderniseerde gezinswoning
• Totale gebruiksoppervlakte wonen van ruim 110 m²
• Drie volwaardige slaapkamers én logeer-/werkkamer
• Open woonkamer met veel lichtinval
• Moderne open keuken met kookeiland en inbouwapparatuur
• Balkon aan de achterzijde
• Volledig betegelde, moderne badkamer
• Separate toilet-/wasruimte op de eerste verdieping
• Praktische kelder voor opslag
• Verzorgde achtertuin met berging
• Gelegen in een goed bereikbare en voorzieningenrijke buurt in Heerlen
| Woning | Woonhuis |
| Garage | Nee |
| Tuin | Ja |
| Bouwlagen | 3 |
| Badkamers | 1 |
| Kelder | Ja |
Reageer op deze woning
Wilt u graag meer informatie over deze woning, of wilt u graag een afspraak met ons maken omtrent deze woning?
Vul onderstaand formulier in, dan nemen wij z.s.m. contact met u op.
Dit object aanraden aan een bekende
Hypotheek berekenen
Voncken makelaardij o.g. beschikt tevens over de nodige hypotheek-expertise. Het kopen van Uw huis is namelijk stap één, het financieren is stap twee. Dit stelt hoge eisen aan de kwaliteit van het financiële advies. Om die te waarborgen hebben de gezamenlijke hypotheekaanbieders een landelijke erkenningsregeling ingesteld, onder verantwoordelijkheid van de Stichting Erkenningsregeling Hypotheekadviseurs (kortweg: SEH). De regeling is bedoeld voor alle individuele hypotheekadviseurs in Nederland. Zo'n persoonsgebonden certificering schept duidelijkheid voor U als consument. Wanneer U een Erkend Hypotheekadviseur raadpleegt, mag U erop rekenen dat deze zijn of haar vak verstaat. Met deze erkenning onderscheidt ons kantoor zich – in de persoon van Edwin Crombach – als een vakbekwame gesprekspartner.
Klik hier om uw maximale hypotheek te berekenen.
Neem contact met ons op om een vrijblijvende hypotheekafspraak te maken.
