Ook voor zakelijke leningen (bedrijfshypotheek en/of rekening-courant), kunt u bij ons kantoor terecht. Klik hier voor meer informatie
Woningzoeker
- Kopen
- Huren
TE KOOP: Dokter Schepelstraat 1, Gulpen
| Vraagprijs | € 395.000,- k.k. | ||
| Bouwjaar | 1988 | ||
| Perceeloppervlakte | 225 m² | ||
| Woonoppervlakte | 88 m² | ||
| Bruto inhoud | 430 m³ | ||
| Aantal slaapkamers | 3 | ||
| Energielabel | D | ||
| Social Media | |||
| |||
Aan de Dokter Schepelstraat 1 in Gulpen staat deze keurig onderhouden hoekwoning. Met drie slaapkamers, een open woon- en eetkamer, een multi-inzetbare zolder en een zonnige tuin met terras, tuinberging en garage, biedt deze woning volop mogelijkheden. Dankzij de aanwezigheid van 8 zonnepanelen is al een eerste stap gezet om de woning energiezuiniger te maken. Met een woonoppervlakte van 87 m² en diverse uitbreidingsopties is dit een ideale woning voor wie op zoek is naar comfort én potentie. Een plek waar u zich direct thuis zult voelen.
In een rustige en groene woonwijk ligt deze woning, op korte afstand van alle dagelijkse voorzieningen. Scholen en sportclubs bevinden zich in de directe omgeving en zijn gemakkelijk te bereiken. Ook supermarkten, winkels en horecagelegenheden zijn op loop- en fietsafstand beschikbaar. Het openbaar vervoer is goed geregeld, met bushaltes nabij en verbindingen richting Maastricht, Heerlen en Aken. Dankzij de gunstige ligging nabij uitvalswegen zijn ook andere delen van Limburg uitstekend bereikbaar.
Entree:
Aan de voorzijde leidt de oprit, met ruimte voor 2 auto's of fietsen, naar de entree van de woning. De hal vormt een prettige binnenkomst met voldoende plek voor een kapstok of opbergmeubel. Hier vindt u tevens het toilet en de trap naar de eerste verdieping. Vanuit de hal loopt u door naar de woonkamer, waardoor deze ruimte de spil vormt van de begane grond.
Woonkamer:
Centraal in de woning bevindt zich de open L-vormige woon-/eetkamer, het kloppende hart van het huis. Dankzij de ramen rondom is er een overvloed aan daglicht, wat de ruimte een luchtig en ruimtelijk karakter geeft. De haard fungeert als eyecatcher en biedt sfeer en warmte.
Keuken:
Aansluitend aan de woon-/eetkamer bevindt zich de keuken, ingericht met een L-vormig aanrecht. De keuken is uitgerust met een gaskookplaat, afzuigkap, spoelbak met kraan, vaatwasser en koelkast. Deze praktische ruimte voldoet in gebruiksgemak en kan, indien gewenst, naar eigen smaak worden gemoderniseerd. Vanuit deze ruimte kijkt u uit op de achtertuin.
1e verdieping:
Via de vaste trap bereikt u de eerste verdieping, waar zich drie slaapkamers en een badkamer bevinden.
Slaapkamers:
De slaapkamers liggen rondom de overloop. Dankzij de dakkapel aan de voorzijde valt er veel licht naar binnen. Of u nu kiest voor een hoofdslaapkamer, een kinderkamer of een werkkamer: de kamers zijn functioneel afgewerkt en multi-inzetbaar.
Sanitair:
De badkamer grenst aan de overloop en is nagenoeg geheel betegeld. Hier vindt u een douche, een ligbad, een wastafel met badmeubel en een staand toilet. De ruimte is netjes onderhouden en functioneel, maar biedt ook de mogelijkheid om gemoderniseerd te worden naar een hedendaagse stijl.
2e verdieping:
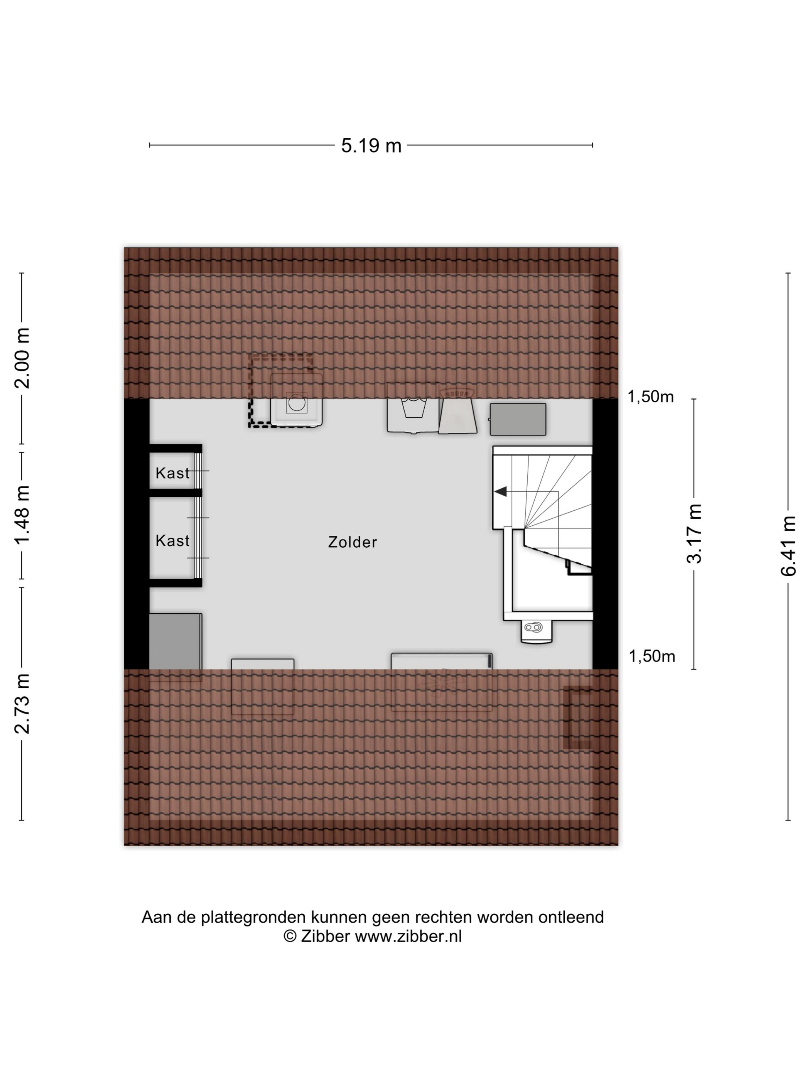
Een vaste trap brengt u naar de tweede verdieping, waar zich een open zolderruimte bevindt. Deze ruimte is uitstekend geschikt als hobbyruimte, te realiseren 4e slaapkamer/logeerkamer of als extra opslagplek. Bovendien is hier de aansluiting voor witgoed aanwezig en zijn hier zowel c.v.-ketel als geiser aanwezig.
Buitenruimte:
Via de keuken bereikt u de achtertuin, die is ingericht met bestrating en een houten tuinberging. De tuin is onderhoudsvriendelijk, maar biedt toch voldoende sfeer en privacy. Er is plek genoeg voor een terras met eettafel of loungeset, zodat u hier volop kunt genieten van zonnige dagen.
Garage:
Direct grenzend aan de woning bevindt zich de garage. Deze is niet alleen praktisch voor het parkeren van een auto, maar ook ideaal voor het opbergen van fietsen, gereedschap of tuinspullen. Hier is een vaste trap aanwezig om de garagezolder te bereiken.
Bijzonderheden:
• Gedateerde, doch netjes onderhouden hoekwoning
• Gelegen aan de Dokter Schepelstraat 1 in Gulpen
• Woonoppervlakte: 87 m²
• Open woon- /eetkamer met veel lichtinval en haard
• Drie slaapkamers op de eerste verdieping
• Badkamer met ligbad, douche, wastafel en toilet
• Multi-inzetbare zolder met witgoedaansluiting
• Zonnige achtertuin met terras en tuinberging
• Garage grenzend aan de woning
• Voorzien van zonnepanelen
• Nabij scholen, sportclubs, winkels en openbaar vervoer
• Goede bereikbaarheid richting Maastricht, Heerlen en Aken
| Woning | Woonhuis |
| Garage | Ja |
| Tuin | Ja |
| Terras | Ja |
| Bouwlagen | 3 |
| Badkamers | 1 |
| Parkeerplaatsen | 2 |
| Garages | 1 |
| Kelder | Nee |
Reageer op deze woning
Wilt u graag meer informatie over deze woning, of wilt u graag een afspraak met ons maken omtrent deze woning?
Vul onderstaand formulier in, dan nemen wij z.s.m. contact met u op.
Er is (nog) geen kaart aan deze woning gekoppeld.
Dit object aanraden aan een bekende
Hypotheek berekenen
Voncken makelaardij o.g. beschikt tevens over de nodige hypotheek-expertise. Het kopen van Uw huis is namelijk stap één, het financieren is stap twee. Dit stelt hoge eisen aan de kwaliteit van het financiële advies. Om die te waarborgen hebben de gezamenlijke hypotheekaanbieders een landelijke erkenningsregeling ingesteld, onder verantwoordelijkheid van de Stichting Erkenningsregeling Hypotheekadviseurs (kortweg: SEH). De regeling is bedoeld voor alle individuele hypotheekadviseurs in Nederland. Zo'n persoonsgebonden certificering schept duidelijkheid voor U als consument. Wanneer U een Erkend Hypotheekadviseur raadpleegt, mag U erop rekenen dat deze zijn of haar vak verstaat. Met deze erkenning onderscheidt ons kantoor zich – in de persoon van Edwin Crombach – als een vakbekwame gesprekspartner.
Klik hier om uw maximale hypotheek te berekenen.
Neem contact met ons op om een vrijblijvende hypotheekafspraak te maken.
